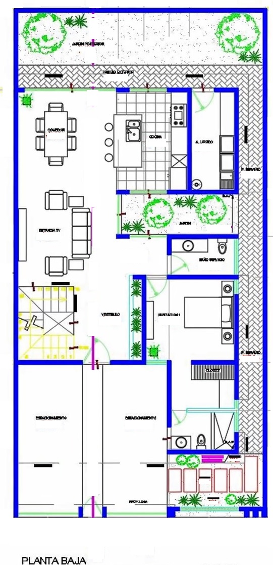
Estimacion presupuesto de construccion de una casa de dos plantas,
con área de 275 m2, en terreno de 200 m² con dimension 10m x 20m.
| DESCRIPCION | MXN $ |
| MATERIALES | 0 |
| Preliminares | 0 |
| Cimentación | 0 |
| Estructura | 0 |
| Albañilería | 0 |
| Repellado | 0 |
| Pisos | 0 |
| Pintado | 0 |
| Puertas & Ventanas | 0 |
| Acabados | 0 |
| Muebles Sanitarios | 0 |
| Inst. Eléctrica | 0 |
| Inst. Hidráulica | 0 |
| MANO DE OBRA | 0 |
| TOTAL MXN $ | 0 |
| Descripción | Und | Cant | Precio | Importe |
|---|---|---|---|---|
| MATERIALES | 0 | |||
| Preliminares | 0 | |||
| Limpieza de terreno | m2 | 0 | 0 | |
| Trazo y nivelación topografica | m2 | 0 | 0 | |
| Cimentación | 0 | |||
| Excavación | m3 | 0 | 0 | |
| Relleno | m3 | 0 | 0 | |
| Plantilla concreto pobre | ||||
| - cemento | bulto | 0 | 0 | |
| - arena | m3 | 0 | 0 | |
| - grava | m3 | 0 | 0 | |
| Mampostería de piedra brasa | ||||
| - piedra brasa | viaje | 0 | 0 | |
| - mortero 1:6 | bulto | 0 | 0 | |
| - arena | viaje | 0 | 0 | |
| Cadena de desplante 15x20cm | ||||
| - cemento | bulto | 0 | 0 | |
| - arena | m3 | 0 | 0 | |
| - grava | m3 | 0 | 0 | |
| Impermeabilización dalas de desplante | ||||
| - primario base solvente (bote 19 lt) | bote | 0 | 0 | |
| - impermeabilizante (bote 19 lt) | bote | 0 | 0 | |
| - festerfelt 15 (rollo 44m) | rollo | 0 | 0 | |
| - capa arena gruesa | m3 | 0 | 0 | |
| Refuerzo cadena desplante (diam 3/8") | kg | 0 | 0 | |
| Estructura | 0 | |||
| Columnas 20x15cm | ||||
| - cemento | bulto | 0 | 0 | |
| - arena | m3 | 0 | 0 | |
| - grava | m3 | 0 | 0 | |
| Trabe 15x25cm | ||||
| - cemento | bulto | 0 | 0 | |
| - arena | m3 | 0 | 0 | |
| - grava | m3 | 0 | 0 | |
| Losa entrepiso (esp= 0.06m) | ||||
| - cemento | bulto | 0 | 0 | |
| - arena | m3 | 0 | 0 | |
| - grava | m3 | 0 | 0 | |
| Losa techo (plantas baja + alta) | ||||
| - cemento | bulto | 0 | 0 | |
| - arena | m3 | 0 | 0 | |
| - grava | m3 | 0 | 0 | |
| Escalera interior | ||||
| - cemento | bulto | 0 | 0 | |
| - arena | m3 | 0 | 0 | |
| - grava | m3 | 0 | 0 | |
| Encofrado | ||||
| - encofrado | m2 | 0 | 0 | |
| Refuerzo de acero | ||||
| - varilla de acero | kg | 0 | 0 | |
| - alambre #16 para atar | kg | 0 | 0 | |
| Albañilería | 0 | |||
| Pared tabique (362 m2) | ||||
| - tabique rojo | u | 0 | 0 | |
| - cemento (mortero) | bulto | 0 | 0 | |
| - arena (mortero) | m3 | 0 | 0 | |
| Pared block (75 m2) | ||||
| - block | u | 0 | 0 | |
| - cemento (mortero) | bulto | 0 | 0 | |
| - arena (mortero) | m3 | 0 | 0 | |
| Repellado | 0 | |||
| Pared interior (345 m2) | ||||
| - mortero (1:4) - cemento | bulto | 0 | 0 | |
| - mortero (1:4) - arena | m3 | 0 | 0 | |
| Pared exterior (170 m2) | ||||
| - mortero (1:4) - cemento | bulto | 0 | 0 | |
| - mortero (1:4) - arena | m3 | 0 | 0 | |
| Aplanado yeso en losa | bulto | 0 | 0 | |
| Pisos | 0 | |||
| Azulejo cerámico | m2 | 0 | 0 | |
| Piso porcelanato | m2 | 0 | 0 | |
| Baldosa de terrazo | m2 | 0 | 0 | |
| Pintado | 0 | |||
| Pared Interior (345m2) | ||||
| - empastado c/imprimante (bote: 5 lt) | bote | 0 | 0 | |
| - sellador (bote: 19 lt) | bote | 0 | 0 | |
| - vinilica interior (bote 19 lt) | bote | Primer0 | 0 | |
| Pared Exterior (170m2) | ||||
| - empastado c/imprimante (bote: 5 lt) | bote | 0 | 0 | |
| - sellador (bote: 19 lt) | bote | 0 | 0 | |
| - vinilica exterior (bote 19 lt) | bote | 0 | 0 | |
| Barras de ventana | glb | 0 | 0 | |
| Puertas & Ventanas | 0 | |||
| puerta - garage | u | 0 | 0 | |
| puerta - entrada | u | 0 | 0 | |
| puerta- habitacion | u | 0 | 0 | |
| puerta - baño | u | 0 | 0 | |
| ventana - 1 (frente) | u | 0 | 0 | |
| ventana - 2 (habitacion) | u | 0 | 0 | |
| ventana - 3 (baño) | u | 0 | 0 | |
| mampara terraza (comedor) | u | 0 | 0 | |
| Acabados | 0 | |||
| granito - cocina | m2 | 0 | 0 | |
| marmol - escalera | m2 | 0 | 0 | |
| baranda cristal templado - balcón | m | 0 | 0 | |
| cobertura azotea | glb | 0 | 0 | |
| Muebles Sanitarios | 0 | |||
| Lavabo | u | 0 | 0 | |
| Inodoro | u | 0 | 0 | |
| Bañera | u | 0 | 0 | |
| Ducha | u | 0 | 0 | |
| Instalación Eléctrica | 0 | |||
| eléctricas | m2 | 0 | 0 | |
| Instalación Hidráulica | 0 | |||
| hidráulicas | m2 | 0 | 0 | |
| Mano de Obra | 0 | |||
| Encofrado | m2 | 0 | 0 | |
| Refuerzo de acero | kg | 0 | 0 | |
| Concreto | m3 | 0 | 0 | |
| Albañilería (tabique rojo) | m2 | 0 | 0 | |
| Albañilería (block) | m2 | 0 | 0 | |
| Repellado muros | m2 | 0 | 0 | |
| Aplanado losa | m2 | 0 | 0 | |
| Pisos | m2 | 0 | 0 | |
| Pintado | m2 | 0 | 0 | |
| Inst. Eléctrica | m2 | 0 | 0 | |
| Inst. Hidráulica | m2 | 0 | 0 | |
Nota: Los resultados no se muestran en esta vista
Este presupuesto corresponde al modelo de arquitectura que se aprecia en las imágenes; las cantidades de material calculadas se basan en las dimensiones mostradas; el usuario puede considerarlos válidos también para áreas a construir mayores o menores en 10m2
Estimacion (2). Basado en cotizaciones directas de precios de insumos